13 978
M001
2
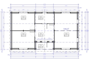
10,5x5,95
60 m2
5 - 6
DESCRIÇÃO
A casa modelo FILL tem um espaço com 60 m². Dois quartos privados situados no lado oposto do espaço principal que garantem um sono tranquilo e sem perturbações. Forma clássica e design exterior: perfeito para quem valoriza a estética tradicional. Uma casa de banho independente para maior conforto. A nossa casa de madeira FILL S pode ser transformada numa linda residência para uma família de tamanho médio a grande, ou até mesmo uma segunda casa espaçosa para férias em família. Além disso, a sua disposição num único andar garante o máximo de conforto para idosos ou para famílias com crianças pequenas.
O que está incluído no nosso Orçamento?
- Pack com toda a estrutura em madeira da casa (Piso, paredes, teto de madeira, portas e janelas)
- Portas e janelas de vidro duplo,
- Chão em madeira,
- Ferragens.
O que NÃO está incluído no nosso Orçamento? (Poderá ser orçamentado à parte)
- Eletrodomésticos,
- Eletricidade e Canalizações,
- Laje de Betão,
- Projeto de Arquitetura,
- Projeto de Especialidades,
- Licenças camarárias,
- Transporte,
- Montagem,
- Qualquer intervenção necessária no terreno, ao nivel de terraplanagem, instalação de serviços ou nivelação.
















