24 631
M011
2
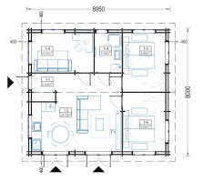
8,95x8,00
72 m2
5 - 6
DESCRIÇÃO
A casa modelo SELENE contém 2 quartos confortáveis, ideais para hóspedes e para manter a privacidade. Uma sala de estar com cozinha aberta, o lugar perfeito para reuniões de família e jantares de fim de semana. Grandes portas de vidro e janelas menores, permitindo a entrada de luz natural em todo o interior. O seu elegante revestimento externo vertical dá um toque contemporâneo. Telhado de duas águas que combina perfeitamente elementos de design tradicional e moderno. Terraço de 25 m² (opcional) onde pode desfrutar de manhãs frescas ou tardes quentes. A nossa charmosa casa de madeira SELENE oferece muito espaço interno convenientemente distribuído: dois quartos confortáveis, uma sala de estar espaçosa com área de cozinha aberta, casa de banho e lavanderia. A disposição eficiente da casa torna-a um modelo muito versátil e adequado para vários fins. Desfrute de um espaço confortável repleto de luz natural que atenderá facilmente às necessidades da sua família.
O que está incluído no nosso Orçamento?
- Pack com toda a estrutura em madeira da casa (Piso, paredes, teto de madeira, portas e janelas)
- Portas e janelas de vidro duplo,
- Chão em madeira,
- Ferragens.
O que NÃO está incluído no nosso Orçamento? (Poderá ser orçamentado à parte)
- Eletrodomésticos,
- Eletricidade e Canalizações,
- Laje de Betão,
- Projeto de Arquitetura,
- Projeto de Especialidades,
- Licenças camarárias,
- Transporte,
- Montagem,
- Qualquer intervenção necessária no terreno, ao nivel de terraplanagem, instalação de serviços ou nivelação.











