23 270
M016
1
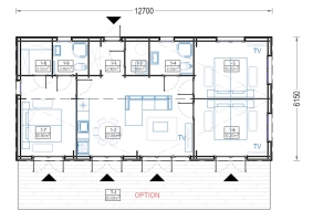
12,70x6,15
78 m2
5 - 6
DESCRIÇÃO
A casa modelo NICOLE tem 3 quartos confortáveis que podem acomodar até seis pessoas sob o mesmo teto. Grandes portas de vidro na frente do edifício que lhe permitirão desfrutar de uma grande quantidade de luz natural. Uma sala iluminada com cozinha aberta, para que toda a família possa desfrutar de bons momentos em companhia. O seu revestimento externo vertical e telhado de duas águas dão um toque de arquitetura contemporânea. Um espaçoso terraço de 30 m² (opcional) onde pode colocar algumas espreguiçadeiras e móveis ao ar livre para relaxar e descontrair após um longo dia. A nossa luminosa e espaçosa casa de madeira NICOLE de 78 m² pode ser exatamente o que procura e muito mais. Devido ao seu tamanho e disposição interna correta, a nossa casa de madeira NICOLE pode servir a muitos propósitos diferentes.
O que está incluído no nosso Orçamento?
- Pack com toda a estrutura em madeira da casa (Piso, paredes, teto de madeira, portas e janelas)
- Portas e janelas de vidro duplo,
- Chão em madeira,
- Ferragens.
O que NÃO está incluído no nosso Orçamento? (Poderá ser orçamentado à parte)
- Eletrodomésticos,
- Eletricidade e Canalizações,
- Laje de Betão,
- Projeto de Arquitetura,
- Projeto de Especialidades,
- Licenças camarárias,
- Transporte,
- Montagem,
- Qualquer intervenção necessária no terreno, ao nivel de terraplanagem, instalação de serviços ou nivelação.











