8 072
M028
1
4x5
20 m2
5 - 6
DESCRIÇÃO
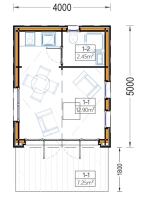
A casa modelo SALLY tem um revestimento contemporâneo dá um toque arquitetónico estético à sua forma clássica. As suas portas de vidro duplo e grandes janelas laterais criam a sensação de espaço aberto e garantem muita luz natural no interior. O seu terraço de 7,25 m² permite que relaxe confortavelmente ao ar livre. Uma área de cozinha americana. Uma casa de banho compacta independente. A casa de madeira SALLY pode oferecer a uma hipótese de fugir do estilo de vida agitado e mergulhar em uma experiência de vida mais tranquila. Se procura um complemento para a sua residência principal ou uma pequena casa de férias, a SALLY pode ser o modelo perfeito que procura.
O que está incluído no nosso Orçamento?
- Pack com toda a estrutura em madeira da casa (Piso, paredes, teto de madeira, portas e janelas)
- Portas e janelas de vidro duplo,
- Chão em madeira,
- Ferragens.
O que NÃO está incluído no nosso Orçamento? (Poderá ser orçamentado à parte)
- Eletrodomésticos,
- Eletricidade e Canalizações,
- Laje de Betão,
- Projeto de Arquitetura,
- Projeto de Especialidades,
- Licenças camarárias,
- Transporte,
- Montagem,
- Qualquer intervenção necessária no terreno, ao nivel de terraplanagem, instalação de serviços ou nivelação.














