39 307
M035
3
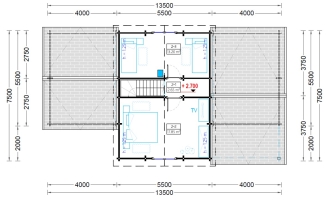
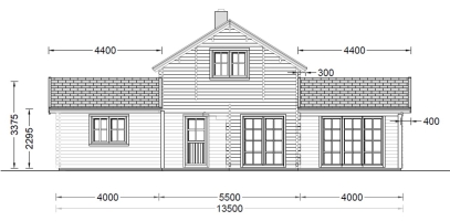
13,5x7,5
113 m2
5 - 6
DESCRIÇÃO
A casa modelo HOLLAND contém 3 quartos grandes: o principal no primeiro andar e outros dois no segundo. Uma excelente sala de estar e jantar que lhe permitirá reunir toda a família e passar bons momentos juntos. Uma casa de banho funcional, no qual cabe facilmente uma banheira. Um belo terraço coberto de 8 m² e um pátio de 5,25 m², perfeito para relaxar e desfrutar de refeições em família ao ar livre. Inúmeras janelas e portas que garantem o máximo conforto e um espaço interior com muita luz natural. Inspirada no design arquitetónico de estilo holandês, a nossa elegante e espaçosa casa de madeira HOLLAND incorpora uma verdadeira casa de família. Incorpora um equilíbrio adequado de espaços abertos para facilitar a comunicação com a sua família, bem como quartos individuais, para garantir a privacidade de todos. Organize o seu espaço da forma que quiser: pode usufruir de espaços mais abertos, divisões maiores, ou se preferir, pode ter espaços mais compactos e acolhedores. As possibilidades com este modelo são inúmeras.
O que está incluído no nosso Orçamento?
- Pack com toda a estrutura em madeira da casa (Piso, paredes, teto de madeira, portas e janelas)
- Portas e janelas de vidro duplo,
- Chão em madeira,
- Ferragens.
O que NÃO está incluído no nosso Orçamento? (Poderá ser orçamentado à parte)
- Eletrodomésticos,
- Eletricidade e Canalizações,
- Laje de Betão,
- Projeto de Arquitetura,
- Projeto de Especialidades,
- Licenças camarárias,
- Transporte,
- Montagem,
- Qualquer intervenção necessária no terreno, ao nivel de terraplanagem, instalação de serviços ou nivelação.












