34 266
M039
2
12x5,95
100 m2
5 - 6
DESCRIÇÃO
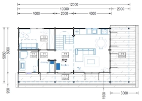
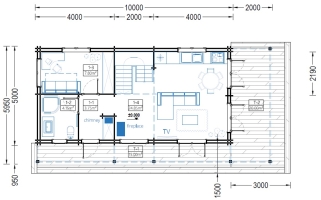
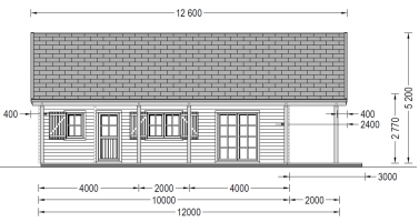
A casa modelo AURA tem um grande terraço coberto (com 30 m²) na parte frontal e lateral da casa que oferece o local perfeito para desfrutar de momentos relaxantes ao ar livre. Uma varanda elegante: um ótimo lugar para relaxar um pouco e aproveitar cada segundo. Uma sala principal espaçosa que permite criar o espaço ideal para descansar com toda a sua família. 2 quartos amplos no segundo andar que garantem a máxima privacidade para todos os moradores. Uma sala compacta separada no primeiro andar, ideal como escritório em casa ou quarto de hóspedes. Casa de banho grande que oferece o melhor conforto residencial. A nossa linda casa de madeira AURA pode ser o que procura. Oferece uma combinação perfeita de espaço interior e exterior e garante o máximo conforto e uma experiência de vida relaxante. Esta casa pode ser um verdadeiro sonho tornado realidade para quem admira soluções arquitetónicas em madeira e um estilo de vida mais natural.
O que está incluído no nosso Orçamento?
- Pack com toda a estrutura em madeira da casa (Piso, paredes, teto de madeira, portas e janelas)
- Portas e janelas de vidro duplo,
- Chão em madeira,
- Ferragens.
O que NÃO está incluído no nosso Orçamento? (Poderá ser orçamentado à parte)
- Eletrodomésticos,
- Eletricidade e Canalizações,
- Laje de Betão,
- Projeto de Arquitetura,
- Projeto de Especialidades,
- Licenças camarárias,
- Transporte,
- Montagem,
- Qualquer intervenção necessária no terreno, ao nivel de terraplanagem, instalação de serviços ou nivelação.


















