29 399
M040
3
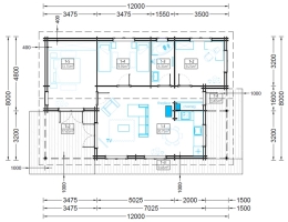
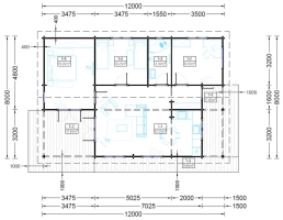
12x8
96 m2
5 - 6
DESCRIÇÃO
A casa modelo LINDA tem um alpendre coberto e terraço em lados opostos da casa para relaxar ao ar livre, seja num dia ensolarado ou chuvoso. Uma ampla sala de estar com cozinha aberta e sala de jantar para estar com a família e descansar confortavelmente dentro de casa. 3 quartos que permitem que toda a família tenha o seu próprio espaço independente e receba convidados a qualquer momento. Uma casa de banho independente que garante o seu máximo conforto. Devido à sua estrutura térrea, a LINDA pode ser uma excelente opção para famílias de tamanho médio com crianças pequenas ou idosos, pois garante facilidade de locomoção por toda a casa. Além disso, os espaços de descanso ao ar livre, acolhedores e funcionais, permitirem que passe mais tempo no quintal, a aproveitar os raios de sol, a respirar ar puro e até a observar as estrelas.
O que está incluído no nosso Orçamento?
- Pack com toda a estrutura em madeira da casa (Piso, paredes, teto de madeira, portas e janelas)
- Portas e janelas de vidro duplo,
- Chão em madeira,
- Ferragens.
O que NÃO está incluído no nosso Orçamento? (Poderá ser orçamentado à parte)
- Eletrodomésticos,
- Eletricidade e Canalizações,
- Laje de Betão,
- Projeto de Arquitetura,
- Projeto de Especialidades,
- Licenças camarárias,
- Transporte,
- Montagem,
- Qualquer intervenção necessária no terreno, ao nivel de terraplanagem, instalação de serviços ou nivelação.





















