37 479
M042
3
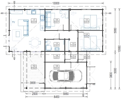
13x10,95
140 m2
5 - 6
DESCRIÇÃO
A casa modelo BERTA F tem uma garagem integrada diretamente conectada à casa principal, o que garante fácil acesso ao seu veículo. Um grande terraço coberto de 17 m² que lhe proporcionará um espaço aconchegante para descansar ao ar livre. Portas de entrada amplas e terraço com vidros duplos com elegantes secções transversais que complementam o aspecto arquitectónico tradicional. 3 quartos compactos que também podem servir a qualquer outro propósito e se tornar um espaço de trabalho, sala de hobby, etc. Uma magnífica sala de estar de 25 m², com cozinha e sala de jantar em conceito aberto que lhe proporcionará um local encantador para descansar confortavelmente com a sua família. Uma casa de banho separada para maior conforto. A nossa casa multifuncional BERTA, com a sua estética de madeira natural e máxima funcionalidade, pode ser exatamente o que procura para realizar o seu sonho. Invista no seu magnífico conforto residencial e não olhe para trás: a sua próxima nova aventura está à sua espera!
O que está incluído no nosso Orçamento?
- Pack com toda a estrutura em madeira da casa (Piso, paredes, teto de madeira, portas e janelas)
- Portas e janelas de vidro duplo,
- Chão em madeira,
- Ferragens.
O que NÃO está incluído no nosso Orçamento? (Poderá ser orçamentado à parte)
- Eletrodomésticos,
- Eletricidade e Canalizações,
- Laje de Betão,
- Projeto de Arquitetura,
- Projeto de Especialidades,
- Licenças camarárias,
- Transporte,
- Montagem,
- Qualquer intervenção necessária no terreno, ao nivel de terraplanagem, instalação de serviços ou nivelação.


















